P. Lastmankade 30 C Amsterdam
Stylish, high-end apartment with private elevator of approx. 207 sqm located on the first floor. High ceilings, large windows and a beautiful view over the green and water of the Noorder Amstelkanaal. Part of a typical Amsterdam School Style building. A former school which has been transformed into 5 unique and spacious apartments with exceptional standards in design, materials and construction.

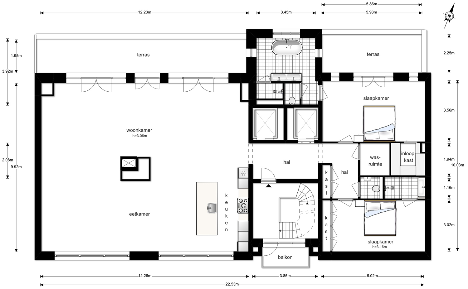
Nice and spacious living room with open kitchen, 2 well sized bedrooms, 2 bathrooms and a large West facing terrace of approx. 24 sqm.

The tastefully decorated common entrance leads to the elevator which gives access to the appartment on the first floor directly. Hall with toilet, cloakroom and access to the communal staircase. The hallway is centrally located and leads to all rooms. The living and kitchen are on the left side and very bright and spacious due to large windows and high ceilings. A modern yet cozy black marble wood burning fireplace divide the living and kitchen. Multiple double doors in both living and kitchen open to the terrace overlooking the attractive garden.

The modern Bulthaup kitchen with island is beautifully finished and equipped with all present day appliances such as an induction cooktop, oven, large fridge and freezer, dishwasher, warming drawer, combi steamer, wine climate cabinet and a Quooker.

The Bedrooms and bathrooms are located on the right side of the apartment. The master has a private terrace of 13 sqm and a luxurious en-suite bathroom with walk-in shower, double wash basin, toilet, custom made cabinetry and a free standing bathtub with a beautiful view over the back yard. In addition there is a large walk in closet. The second bedroom is equipped with a private bathroom and built-in wardrobe as well. Both bathrooms are finished with high standard materials such as ceramic tiles of Gigacar, Monolith wash basins. Furthermore there is a laundry room with washing machine and dryer.

Unique features of the apartement:

  • Air conditioning in all bedrooms
  • Due to the complete and extensive renovation of the building and the use of solar panels and solar- reflective glass the appartment has an energy label A+
  • Solid oak wooden floors throughout the apartment
  • Underfloor heating
  • High quality materials

Would you like to know more or make an appointment?
Contact our real estate agent
Broersma Makelaardij
+31 (0)20 305 97 77
www.broersma.nl

Apartment C

Type upholstered
Rent price on request
Size 207 m2 (NEN 2580)
Rooms 2 bedrooms / 2 bath / 2 toilets
Kitchen open plan fully equipped / quooker / wine climate cabinet / induction
Appliances laundry room with washer / dryer
Outdoor 2 terraces front and rear
Storage built-in wardrobes
Access lift
Extra wood fire place
Safety alarm system present
Availabilty let
Brochure download (A4 pdf)
   
Share
First Floor
Location
Contact us
PL30 has been developed in cooperation with:
PL30 has been developed in cooperation with:
Zebru

We are specialized in the development and renovation of houses and apartments located in Amsterdam’s beautiful and renowned Oud-Zuid.

Visit us

Banstraat 24
1071 JZ Amsterdam

Call us

0031 6 15934615

Email us

info@zebru.biz

© 2019 by Zebru BV Amsterdam
More of our world
© 2019 by Zebru BV Amsterdam